The Bellamy Team

Lot 4 Tooge Hayes Rd. , Marion, SC 29571

$199,900
  • Lot 4 Tooge Hayes Rd. , Marion, SC 29571 Main Photo

2 Total Photos [Click to View All]

Active
BEDS4 BATHS2 full SQUARE FEET1,791 MLS#2604900
STATUSActive PROPERTY TYPEResidential - Mobile Home SUBDIVISIONNot within a Subdivision

Property Description

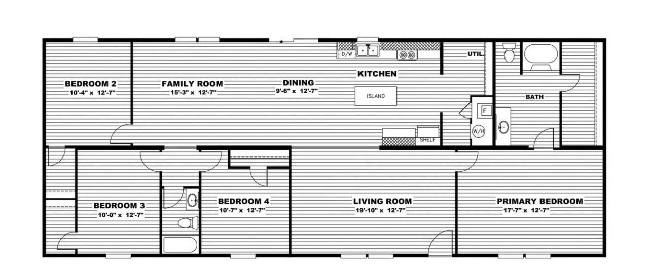
Embrace affordable, spacious country living on a generous 1.5-acre parcel (PIN # 0340000102000) along peaceful Tooge Hayes Road in Mullins, SC. This quiet, rural setting in Marion County offers plenty of elbow room and natural serenity, while being conveniently located just minutes from Mullins local amenities, schools, shopping, and dining. Easy access to major routes makes commutes to Florence, Myrtle Beach, or surrounding areas straightforwardperfect for families, retirees, or anyone seeking a relaxed lifestyle with room to grow. This brand-new 2025 Pride model double-wide manufactured home delivers exceptional value and modern comfort: 4 spacious bedrooms and 2 full bathsideal for growing families, guests, home offices, or hobby spaces in this popular, family-friendly layout (approximately 1,791 sq ft of open living area). Thoughtfully designed open-concept floor plan with a bright kitchen featuring contemporary appliances, ample cabinetry, island/breakfast bar options, and seamless flow into the living and dining areas for everyday entertaining. High-quality construction from trusted builders (TRU/Clayton Homes Pride series), meeting South Carolina standards with a permanent foundation, attractive skirting, steps/porch entry, energy-efficient features like central HVAC, and low-maintenance finishes throughout. Expansive outdoor potential on your private 1.5-acre lotplenty of space for gardening, outdoor activities, a playset, additional parking, sheds, or simply enjoying the peaceful, wooded/rural surroundings with no close neighbors crowding in. Marion Countys zoning supports manufactured homes on individual lots like this one (with proper permitting, setup, and inspections), offering flexibility without restrictive HOA rulesmaking it an excellent choice for first-time buyers, expanding households, downsizers, or investors looking for a solid, appreciating property in a stable rural market. Priced competitively in the presale phasesecure your customizations, builder incentives, and installation timeline now before completion! With land values holding strong in Marion County and demand for affordable quality homes rising, this is a smart opportunity to own a move-in-ready 2025 Pride double-wide on a sizable 1.5-acre lot with lasting appeal. For full pricing details, floor plan specifics (including the popular Pride TRU28684RH-inspired design), customization options, lot photos, delivery/setup estimates, or to schedule a private viewing of the site, contact me today. Properties like this in Mullins dont stay available longclaim your slice of South Carolina countryside on Tooge Hayes Road!

Lot 4 Tooge Hayes Rd. | MLS# 2604900

This single family home located at Lot 4 Tooge Hayes Rd. , Marion, SC 29571 is currently listed for sale with an asking price of $199,900. This property was built in 2025 and has 4 bedrooms and 2 full baths with 1791 sq. ft. Lot 4 Tooge Hayes Rd. is located in the Not within a Subdivision subdivision. Search Not Within A Subdivision real estate on thebellamyteam.century21thomas.com today.

Property Features

Property Type: Residential - Mobile Home
Home Style: Mobile Home
Lot Size: 1.50 Acres
Year Built: 2025

Feature Descriptions

Days on Site: 49
HOA Fee: 0/ Monthly
Parcel#: 034-00-00-102
Parking: Driveway
Parking Notes: Driveway

Local Schools

High School: Outside of Horry & Georgetown Counties
Middle School: Outside of Horry & Georgetown Counties
Elementary School: Outside of Horry & Georgetown Counties

Listed By / Shown By

Listed By

Agency Name: Diamond Shores Realty
Agency Phone: 843-488-2900

Shown By

Agent Name: The Bellamy Team
Agent Phone: Office: (843) 273-3018
Agency Title: CENTURY 21 Thomas

IDX logo

Estimate Your Payment

Estimated Payment

$ 503.19 per month $444.89 Principal & Interest $0.00 Property Tax (data not provided by mls) $58.30 Homeowner's Insurance

Change Payment Information

%
years/fixed
yearly
yearly (est.)
(Payments are an estimate and may vary by lender)

Login to My Homefinder

Pixel